You are already aware of the difficulties if you reside in a townhouse or semi-detached home in the Greater Toronto and Hamilton Area. We deal with homes that are frequently long and narrow, sharing at least one wall with a neighbor who may sleep quite differently from you. The “standard” basement layout you see on HGTV typically doesn’t fit our local reality when it comes time to finish the basement. Your basement is only 17 feet wide overall, so you can’t just throw a pool table in the middle and call it a day.
In places like Mississauga, Hamilton, and Toronto, Rich Home Inc. has completed hundreds of these basements. We see the same challenges over and over: the furnace is in the way, the stairs cut the room in half, and there is only one window at the very back. But here is the thing, those constraints actually force us to get more creative. A well-planned townhouse basement can actually feel more high-end and cozy than a massive, empty basement in a detached mansion. It’s all about how you use the “zones.”
How to Plan Basement Layout for Townhomes and Semi-Detached Homes
The biggest mistake we see in GTHA townhomes is trying to build a long hallway down the side of the basement. If your home is 18 feet wide and you take away 4 feet for a hallway and another foot for wall thickness, you are left with a room that feels like a bowling alley. Instead, we use what we call “Flow-Through Design.”
In this approach, we eliminate the hallway entirely. You walk down the stairs directly into a central “hub”, usually the lounge or media area. From there, you branch off into the bathroom or the office. By making the living space the walkway, you keep the room as wide as possible. We also look at the “Sightline Rule.” When you stand at the bottom of the stairs, you should be able to see a window or a focal point at the far end. This trick of the eye makes the basement feel significantly less underground.

Dealing with the Central Mechanical Core
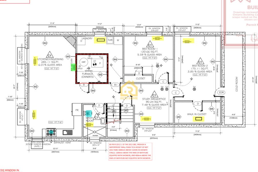
In many semis across Hamilton and Oakville, the builder placed the furnace, water heater, and main drain stack right in the center of the basement. It’s frustrating, but moving all of that is rarely budget-friendly. Instead of fighting it, we wrap the layout around it. We often build a decorative feature wall or a dual-sided fireplace that hides the mechanical room. This turns a structural eyesore into a natural divider between, say, your home gym and your TV area.
Top Basement Layout Configurations For Ontario
Not everyone uses their basement the same way. A young professional in Liberty Village needs something very different than a growing family in Milton. Here are the three most successful layouts we are seeing right now that maximize both space and resale value.
| Layout Concept | Primary Feature | GTHA Suitability | Vibe |
|---|---|---|---|
| The Executive Flex | Glass-walled home office | Perfect for Toronto professionals | Modern, airy, professional |
| The Family Zone | Hidden storage + Play area | High demand in suburbs (Brampton/Whitby) | Functional, durable, cozy |
| The Rental Powerhouse | Full kitchen + Private bedroom | Best for high-interest-rate environments | Efficient, private, legal |
The “Executive Flex” Layout
With more of us working from home permanently, the “basement office” has evolved. We aren’t just putting a desk in a corner anymore. The Executive Flex layout uses the front of the basement (closest to the stairs) for a high-end office. We use glass partitions instead of drywall. This allows the light from the back windows to travel all the way through. Behind the office, we usually place a sleek lounge area with a wet bar. It feels like a private club rather than a basement.
The “Family Play & Stay” Layout
This layout is a lifesaver for parents. We dedicate the brightest part of the basement to the kids’ play zone. But here is the secret: we build deep, floor-to-ceiling cabinetry along the “party wall” (the shared wall with your neighbor). This serves two purposes. First, it hides all the toys in seconds. Second, all that wood and storage acts as an incredible sound buffer. You won’t hear your neighbor’s TV, and they won’t hear your kids. We often pair this with a guest bedroom near the stairs for when the grandparents visit.
The Legal Second Suite Layout: Balancing Comfort
Let’s face it: living expenses in the GTHA are ever so high. One of the best ways to reduce your expenses is to turn your semi-detached basement into an authorized rental property. Yet, a kitchenette cannot be thrown in the corner and considered a basement apartment. The layout must adhere to strict safety regulations to be permitted in Ontario. Many do-it-yourself projects fail at this point.
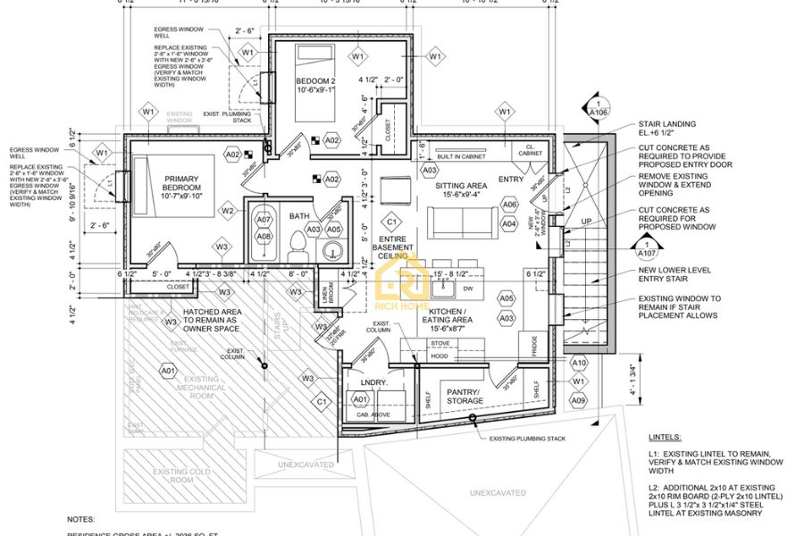
A secondary exit is necessary for a legal layout. We frequently have to install an egress window if you don’t have a walkout. The location of this window, which is typically enormous, will determine the direction of the bedroom. Fire separation is another issue that needs to be considered.

A legal layout requires a secondary exit. If you don’t have a walkout, we often have to install an egress window. This window is usually huge, and its location will dictate where the bedroom goes. You also have to worry about fire separation. In a semi, your layout needs to ensure that if a fire starts in the basement, it stays contained long enough for everyone to get out. You can know more about ROI for a legal finished basement in 2025, which explains why this investment is so powerful right now.
Designing the “Linear Kitchen” for Rental Units
In a narrow townhome, a U-shaped kitchen is a space-killer. We always recommend a “Linear” or “I-Shaped” kitchen for rental suites. You put the fridge, stove, and sink all on one wall. This leaves the rest of the floor space open for a dining table or a sofa. It makes a 500-square-foot basement feel like a 700-square-foot apartment. Tenants in the GTA are savvy, they will pay more for a place that feels open and modern rather than cramped and dated.
Structural Challenges For Your Finished Basement Layout
We can draw pretty pictures all day. But your house has “bones” that we have to respect. Before we build and design a basement layout, we look at three critical things.
1. Ceiling Height Challenges
Basements in older Toronto neighborhoods like Cabbagetown or East York are often short. If your ceiling is only 6 feet high, your layout options are limited. You can underpin the foundation to dig it deeper, but that is a big project.
If digging isn’t in the budget, we have to get creative with the layout. We position the rooms so that you are not walking under low ductwork constantly. We might put the storage closets or the laundry room in the lowest spots. This keeps the high ceilings for the areas where you stand and walk.
2. The Plumbing Stack Location
On the floor of your basement, look for the large black pipe. Your primary sewage stack is that. This pipe must be near your new bathroom. The concrete floor will need to be jackhammered up if the bathroom is moved to the opposite side of the house. Your budget is quickly ruined by this.
The kitchen and bathroom wet walls are kept close to that stack by a clever basement layout. You can spend the money you save on plumbing on more attractive finishes.
3. Soundproofing Common Walls
The most common complaint about semi-detached homes is noise. Your neighbor’s TV is not something you want to hear. They also don’t want to listen to your music. The shared wall is handled differently when designing the layout of the basement.
We don’t just put up drywall. Here we build a decoupled wall. We use insulation to dampen the noise. It takes up about 4 or 5 inches of space, but it is worth every inch for the peace.

The Impact of Lighting on Your Basement Layout Choice
Light is the “make or break” factor for basement layouts. Since townhomes only have windows at the ends, the middle of the basement is naturally a cave. We combat this by using “Layered Lighting.” Here we don’t just put in 20 pot lights and call it a day. We use:
- Ambient Lighting: Dimmable pot lights for general brightness.
- Task Lighting: Under-cabinet lights in the kitchenette or a desk lamp in the office.
- Accent Lighting: LED strips in a bulkhead or behind a TV to add depth.
By lighting the corners of the room, the walls “push back” visually, making the narrow layout feel wider.
How To Maximise Basement Storage Without Sacrificing Living Space
One thing people forget when finishing their basement is that they still have “stuff.” Christmas decorations, winter tires, and old suitcases don’t just disappear. In a townhouse, you don’t have a big garage or a shed. We love to use the space under the stairs for more than just a dusty closet. We’ve built everything from wine cellars to “puppy palaces” (dog crates built into the millwork) under there.
Here are a few tricks we use to hide storage in plain sight:
- Under-Stair Storage: This is prime real estate. We can build custom pull-out drawers for shoes. We have even built wine cellars and dog crates under the stairs.
- The Perimeter Bulkhead: If we have to run ducts, we build a bulkhead around the edge of the room. We can sometimes sneak narrow storage shelves into these spaces.
- Built-in Bench Seating: In the dining or play area, we can build a bench against the wall. The seat lifts up to reveal deep storage for bulky items.
Another trick is the “Storage Wall.” Instead of building a closet that sticks out into the room, we build a wall of shallow cabinetry (about 12 inches deep) along the entire length of a room. It looks like a high-end feature wall but holds a massive amount of gear. This keeps the center of the room clear and the layout feeling intentional.

Making it Official With the Ontario Building Code
If you are planning a renovation in the GTHA, you need to be aware of the Ontario Building Code. This isn’t just red tape; it’s what ensures your home is safe and your insurance is valid. For example, if your layout includes a bathroom, you need to ensure the ventilation is up to par. We see a lot of people just vent a fan into the floor joists. Don’t do that. It leads to rot and mold. You can check out our guide on bathroom ventilation code requirements in Ontario to see how we do it the right way.
Choosing Between an Open or Closed Layout
This is the big debate. An open layout is better for light and making the space feel big. A closed layout (with more rooms) is better for privacy and sound control. If you have teenagers who want to play video games while you’re trying to read, you want walls. If you’re a couple who wants a big cinema room, go open. We often suggest a “Hybrid Layout”, using large sliding barn doors or pocket doors. You can leave them open most of the time to enjoy the space, but close them off when you need a quiet moment.
Professional Basement Layout & Design in the GTHA
It’s similar to playing Tetris when designing a basement for a townhouse or semi. There are only a few pieces available, and they must fit precisely. However, it’s the greatest feeling in the world when done correctly. All of a sudden, you have a whole additional floor of living space that you genuinely want to use. You’re adding value to your life and your greatest financial asset, not just a room.
From the small Victorian basements in Cabbagetown to the contemporary, deep basements in more recent construction in Burlington, we have seen it all. Don’t fight, the house is always the key. Plan your layout before you ever pick up a hammer, embrace the comfortable nooks, and work with the narrowness. We are here to help you navigate the permits, the codes, and the design choices that make these projects a success.
Your basement should reflect the unique characteristics of what you want it to be. The perfect layout is the cornerstone of everything, whether you’re looking for your own private sanctuary or a rental income. For the reason for you to appreciate the outcomes for years to come, let’s make sure we build it correctly the first time.
Are you wondering how a particular layout might fit into the size of your existing basement? We would be delighted to examine your area and assist you in determining how to make the most of every square inch.

Areas We Serve
We are proud to offer our Home Renovation services in the following areas:
Hamilton
Burlington
Oakville
Milton
Mississauga
Toronto
Contact Info
Send us a message or call us and we’ll get back to you as soon as we can.
Valid until end of month
book now for SPECIAL saving!
free estimate
(647) 994-1439
have a questions?
info@richhomeinc.ca
Get Started Today
Transform your home with Rich Home Inc. Contact us now for a free consultation and begin your renovation journey!